LOGIN
HOME
CATEGORIES
UPLOAD FILE
PRICING
HOUSE PLAN
ABOUT US
CONTACT US
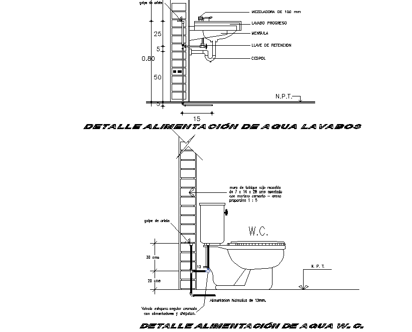
Water Closet Detail In DWG File
Home
Categories
Dwg Cad Blocks
Sanitary Ware Cad Block
Water Closet Detail In DWG File
Uploaded by:
Dhara
View Profile
View Profile
Description
Water Closet Detail In DWG File which includes mixer, progress laundry, retaining wrench, partition wall, hydraulic power, valve.
File Type:
DWG
File Size:
556 KB
Category::
Dwg Cad Blocks
Sub Category::
Sanitary Ware Cad Block
type:
Gold
Uploaded by:
Dhara
View Profile
Download
Add to libary
find Latest
Related
Files