LOGIN
HOME
CATEGORIES
UPLOAD FILE
PRICING
HOUSE PLAN
ABOUT US
CONTACT US
Detail of stair detail dwg file
Home
Categories
Details
Construction Details
Detail of stair detail dwg file
Uploaded by:
Dhara
View Profile
View Profile
Description
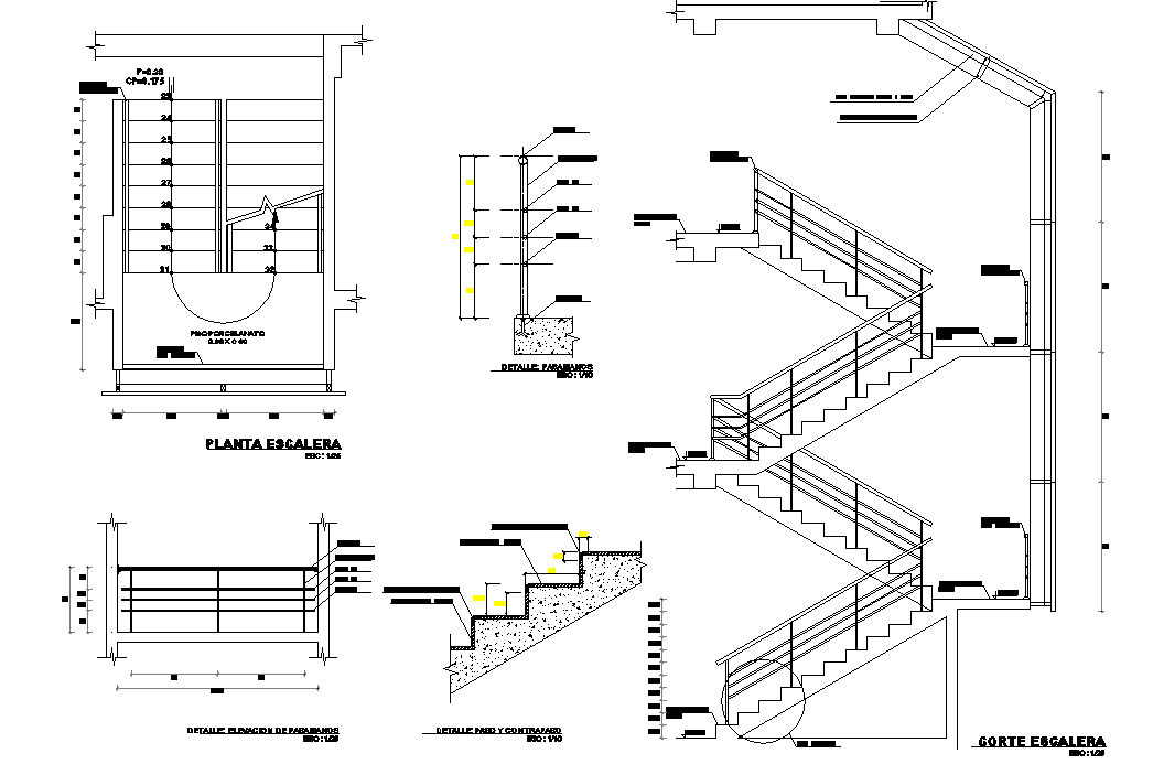
Detail of stair detail dwg file, including a tread and riser detail, dimension detail, naming detail, plan and section detail, etc.
File Type:
DWG
File Size:
9.8 MB
Category::
Details
Sub Category::
Construction Details
type:
Gold
Uploaded by:
Dhara
View Profile
Download
Add to libary
find Latest
Related
Files