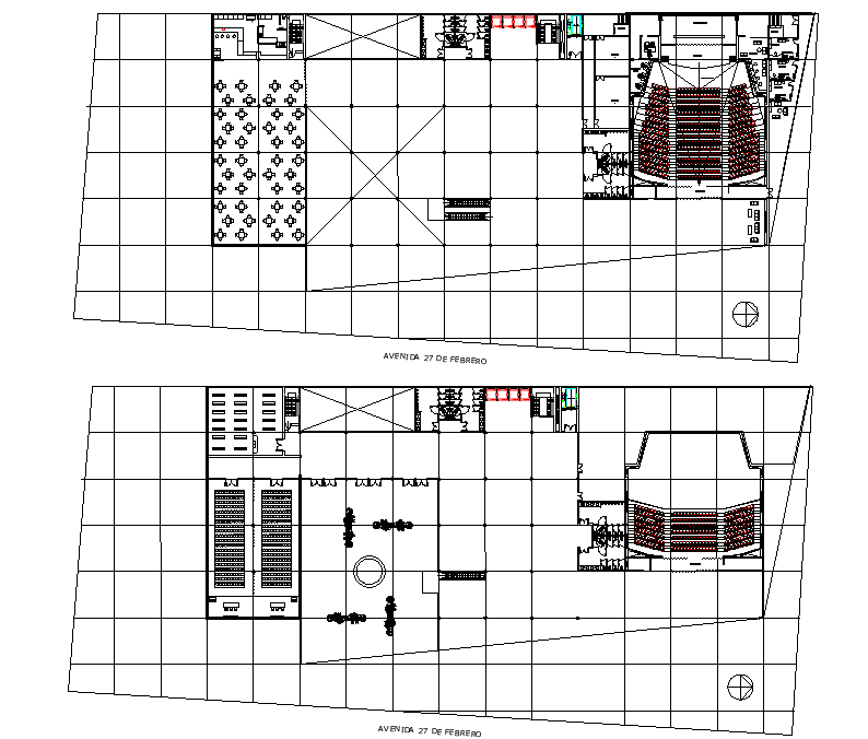
Office building auditorium conf room bar restaurant plan detail dwg file
Description
Office building auditorium conf room bar restaurant plan detail dwg file, including north direction detail, furniture detail in table, chair, door and window detail, etc.
Uploaded by:

