LOGIN
HOME
CATEGORIES
UPLOAD FILE
PRICING
HOUSE PLAN
ABOUT US
CONTACT US
Home plan detail dwg file
Home
Categories
Architecture
House Plan
Home plan detail dwg file
Uploaded by:
Dhara
View Profile
View Profile
Description
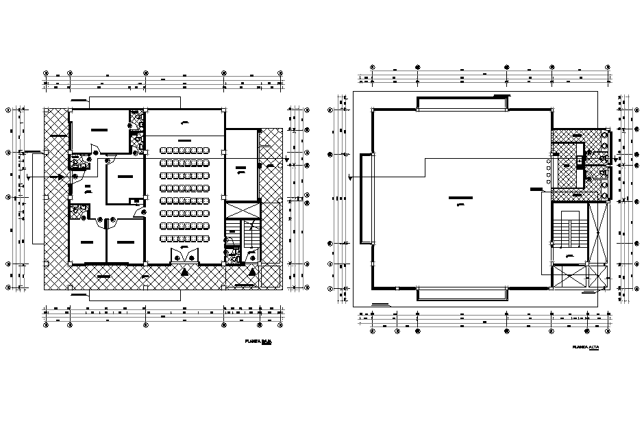
Home plan detail dwg file, with center lien plan detail, dimension detail, naming detail, furniture detail in table, chair, door and window detail, etc.
File Type:
DWG
File Size:
764 KB
Category::
Architecture
Sub Category::
House Plan
type:
Gold
Uploaded by:
Dhara
View Profile
Download
Add to libary
find Latest
Related
Files