LOGIN
HOME
CATEGORIES
UPLOAD FILE
PRICING
HOUSE PLAN
ABOUT US
CONTACT US
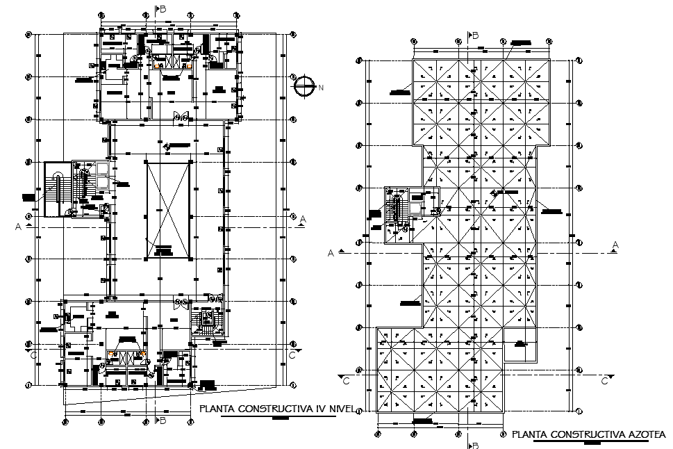
Level building construction plants detail dwg file
Home
Categories
Details
Construction Details
Level building construction plants detail dwg file
Uploaded by:
Dhara
View Profile
View Profile
Description
Level building construction plants detail dwg file, including centre lien plan detail, section line detail, dimension detail, naming detail, etc.
File Type:
DWG
File Size:
1.1 MB
Category::
Details
Sub Category::
Construction Details
type:
Gold
Uploaded by:
Dhara
View Profile
Download
Add to libary
find Latest
Related
Files