Office building with underground garage for 73 places plan detail dwg file
Description
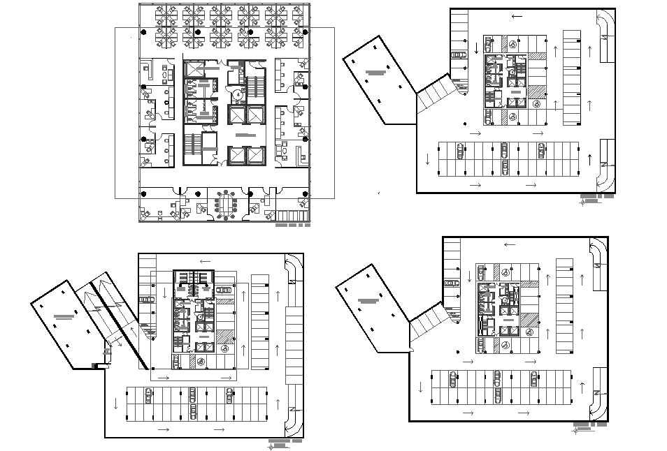
Office building with underground garage for 73 places plan detail dwg file, with car parking detail, ramp detail, cut out detail, furniture detail in a table, chair, door and window detail, etc.
Uploaded by:

