Financial center

Financial center
Profile

Uploaded by:

Poonam

Description
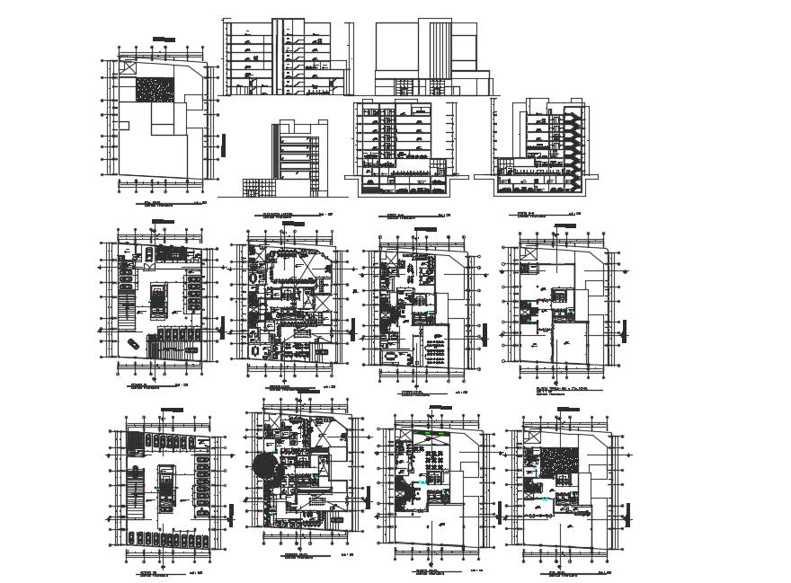
Design of Financial center with layout plan and construction plan, structure plan, section plan, foundation plan and beam detail, front elevation detail Financial center Building in AutoCAD format.
Profile

Uploaded by:

Poonam

find Latest

Related Files

WhatsApp Chat