LOGIN
HOME
CATEGORIES
UPLOAD FILE
PRICING
HOUSE PLAN
ABOUT US
CONTACT US
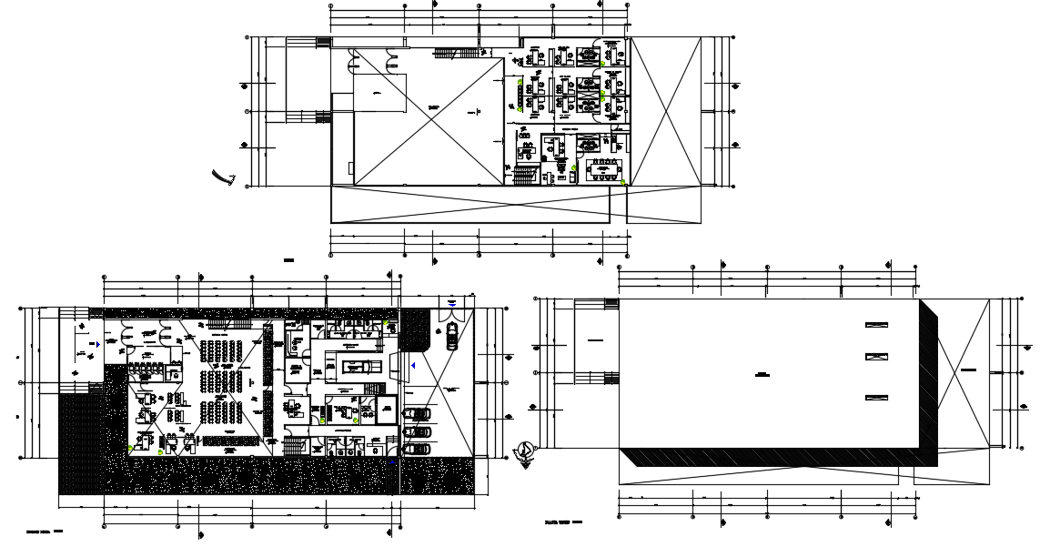
Banking layout plan
Home
Categories
Architecture
Bank Drawing
Banking layout plan
Uploaded by:
Poonam
View Profile
View Profile
Description
Banking layout plan dwg file. With structural detail plan, section and elevation working plan, foundation plan and beam detail in AutoCAD format.
File Type:
DWG
File Size:
3.7 MB
Category::
Architecture
Sub Category::
Bank Drawing
type:
Free
Uploaded by:
Poonam
View Profile
Download
Add to libary
find Latest
Related
Files