LOGIN
HOME
CATEGORIES
UPLOAD FILE
PRICING
HOUSE PLAN
ABOUT US
CONTACT US
Administrative building city layout plan
Home
Categories
Architecture
Corporate Building
Administrative building city layout plan
Uploaded by:
Poonam
View Profile
View Profile
Description
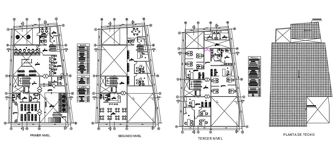
Layout plan of an administrative building dwg file.Construction plan, structure plan, section plan, foundation plan and beam detail, cabins, tables and chairs etc.
File Type:
DWG
File Size:
562 KB
Category::
Architecture
Sub Category::
Corporate Building
type:
Gold
Uploaded by:
Poonam
View Profile
Download
Add to libary
find Latest
Related
Files