Elevation olive processing marketing and resear plan detail
Description
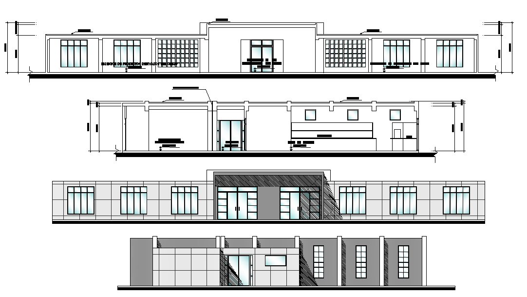
Elevation olive processing marketing and resear plan detail, dimension detail, naming detail, front elevation detail, right elevation detail, left elevation detail, back elevation detail, etc.
Uploaded by:

