Kitchen appliances plan detail

Kitchen appliances plan detail
Profile

Uploaded by:

Dhara

Description
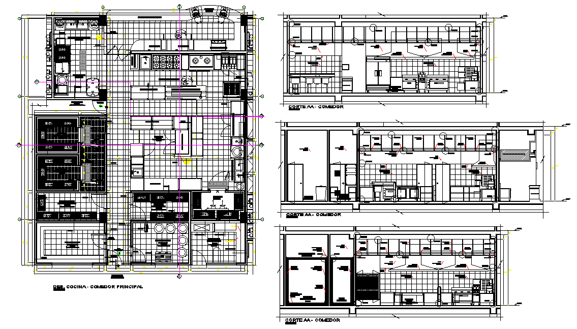
Kitchen appliances plan detail, plan and section detail, dimension detail, naming detail, sink detail, centre line detail, furniture detail in door, cub board, dower and window detail, etc.
Profile

Uploaded by:

Dhara

find Latest

Related Files

WhatsApp Chat