LOGIN
HOME
CATEGORIES
UPLOAD FILE
PRICING
HOUSE PLAN
ABOUT US
CONTACT US
Industrial warehouse metal structure 200m2 detail
Home
Categories
Architecture
House Plan
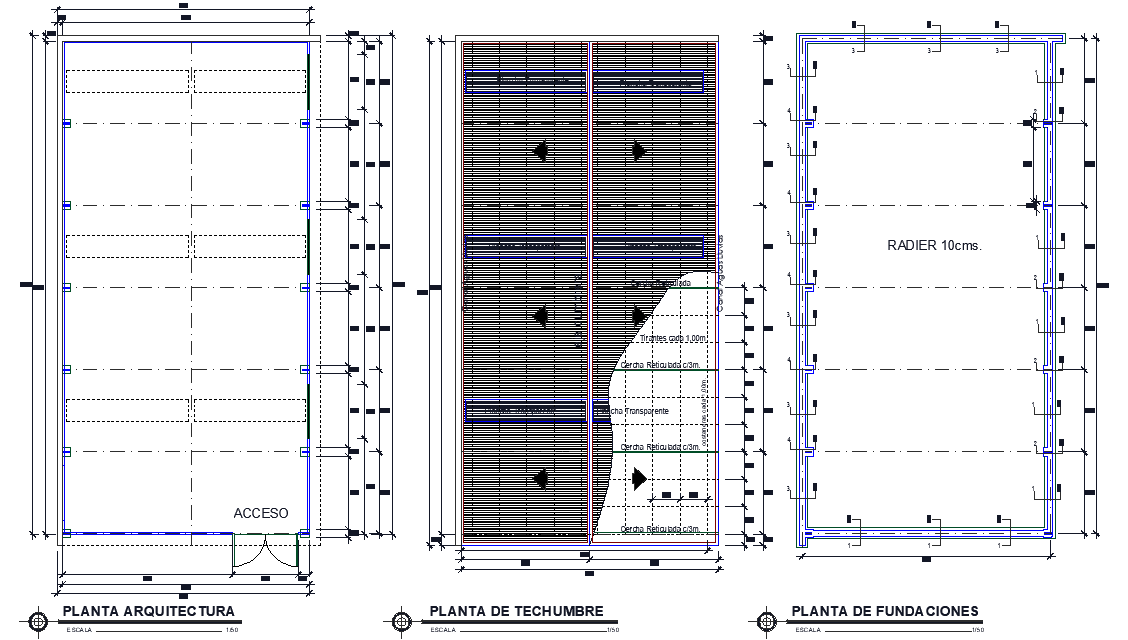
Industrial warehouse metal structure 200m2 detail
Uploaded by:
Dhara
View Profile
View Profile
Description
Industrial warehouse metal structure 200m2 detail, dimension detail, naming detail, section line detail, door and window detail, etc.
File Type:
DWG
File Size:
739 KB
Category::
Architecture
Sub Category::
House Plan
type:
Gold
Uploaded by:
Dhara
View Profile
Download
Add to libary
find Latest
Related
Files