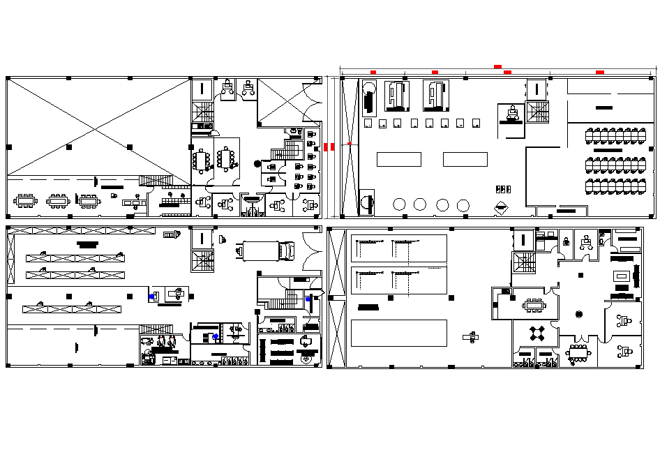
Clothing factory sewing machines cutting table sir on sware house plan detail
Description
Clothing factory sewing machines cutting table sir on sware house plan detail, cut out detail, dimension detail, naming detail, leveling detail, stair detail, furniture detail in table, chair, door and window detail, toilet detail, etc.
Uploaded by:

