LOGIN
HOME
CATEGORIES
UPLOAD FILE
PRICING
HOUSE PLAN
ABOUT US
CONTACT US
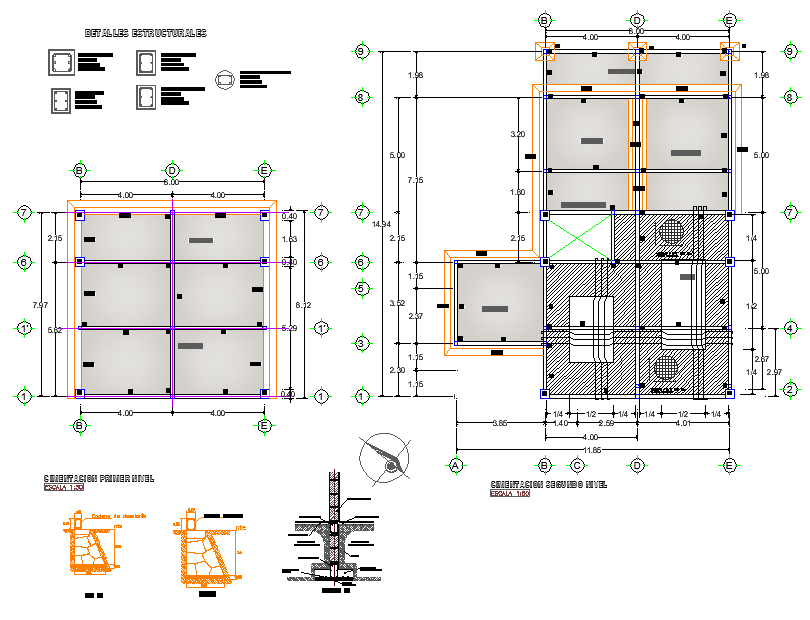
Footing plan and section layout file
Home
Categories
Structure
Footing Detail
Footing plan and section layout file
Uploaded by:
Dhara
View Profile
View Profile
Description
Footing plan and section layout file, scale 1:50, reinforcement detail, bolt nut detail, dimension and naming, centre line detail, stone detail, etc.
File Type:
DWG
File Size:
1.8 MB
Category::
Structure
Sub Category::
Footing Detail
type:
Gold
Uploaded by:
Dhara
View Profile
Download
Add to libary
find Latest
Related
Files