LOGIN
HOME
CATEGORIES
UPLOAD FILE
PRICING
HOUSE PLAN
ABOUT US
CONTACT US
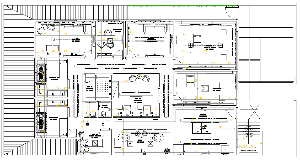
Office commercial layout file
Home
Categories
Architecture
Corporate Building
Office commercial layout file
Uploaded by:
Dhara
View Profile
View Profile
Description
Office commercial layout file, dimension detail, naming detail, stair detail, furniture detail in door, window, sofa, table and chair detail, ramp detail, etc.
File Type:
DWG
File Size:
2.7 MB
Category::
Architecture
Sub Category::
Corporate Building
type:
Gold
Uploaded by:
Dhara
View Profile
Download
Add to libary
find Latest
Related
Files