LOGIN
HOME
CATEGORIES
UPLOAD FILE
PRICING
HOUSE PLAN
ABOUT US
CONTACT US
Residential house plan dwg file
Home
Categories
Architecture
House Plan
Residential house plan dwg file
Uploaded by:
Dhara
View Profile
View Profile
Description
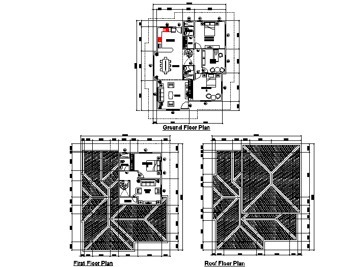
Residential house plan dwg file, ground floor to terrace floor plan detail, dimension detail, naming detail, furniture detail in sofa, table, chair, door and window detail, etc.
File Type:
DWG
File Size:
272 KB
Category::
Architecture
Sub Category::
House Plan
type:
Gold
Uploaded by:
Dhara
View Profile
Download
Add to libary
find Latest
Related
Files