Section coffee company headquarter sand confectionery layout file
Description
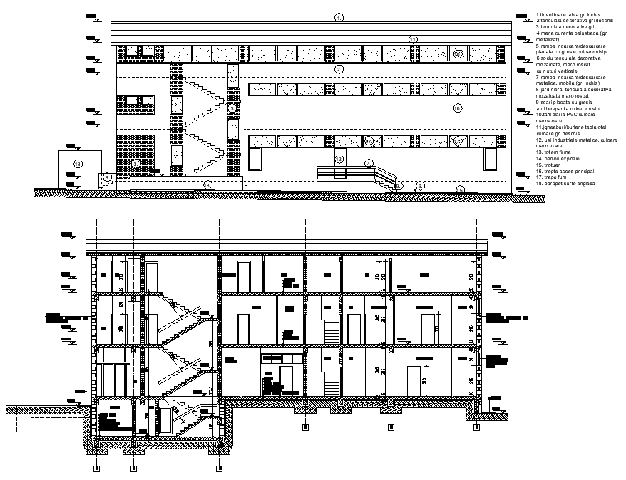
Section coffee company headquarter sand confectionery layout file, stair detail, levelling detail, dimension detail, stair cutting detail, foundation detail, furniture detail in door and window detail, etc.
Uploaded by:

