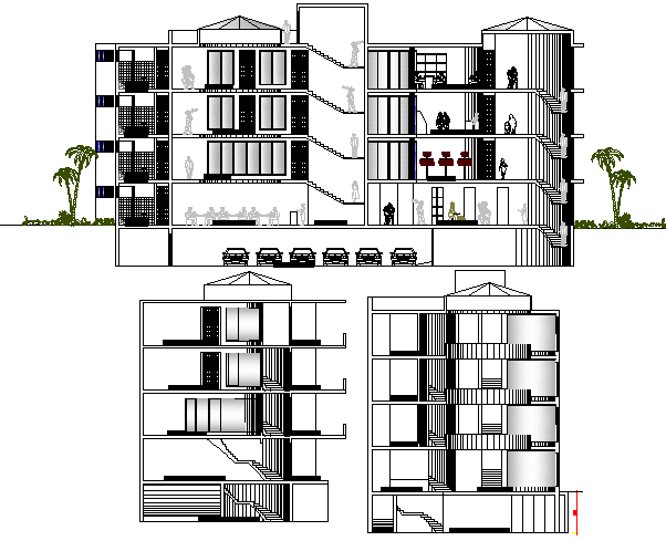
Multi-level city shopping mall elevation and sectional details dwg file
Description
Multi-level city shopping mall elevation and sectional details dwg file.
Multi-level city shopping mall elevation and sectional details that includes a detailed view of flooring view, basement car parking view, tree view, doors and window, wall design, people blocks, staircases, elevators and much more of shopping mall details.
Uploaded by:

