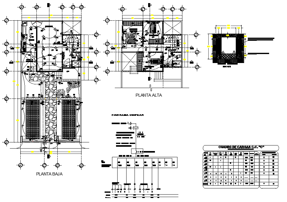
Electrical plan house plan layout file
Description
Electrical plan house plan layout file, table legend detail, centre line detail, circuit detail, dimension detail, naming detail, stair detail, etc.
File Type:
DWG
File Size:
1.7 MB
Category::
Electrical
Sub Category::
Architecture Electrical Plans
type:
Gold
Uploaded by:
