Proposed layout of Medical Residence design drawing
Description
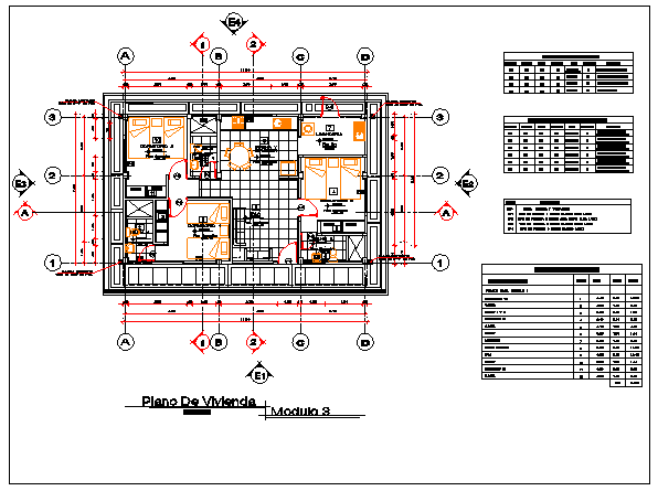
Here Elevation design drawing of medical residence design drawing with working layout design drawing, center line plan design drawing, furniture layout design drawing, table of areas mentioned, module table mentioned, table of door detail design drawing in this auto cad file.
Uploaded by:
zalak
prajapati

