Ground floor plan to roof framing house plan detail dwg file
Description
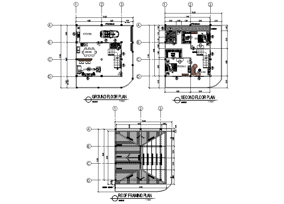
Ground floor plan to roof framing house plan detail dwg file, centre line plan detail, dimension detail, naming detail, furniture detail in sofa, table, chair, door and window detail, car parking detail, etc.
Uploaded by:

