LOGIN
HOME
CATEGORIES
UPLOAD FILE
PRICING
HOUSE PLAN
ABOUT US
CONTACT US
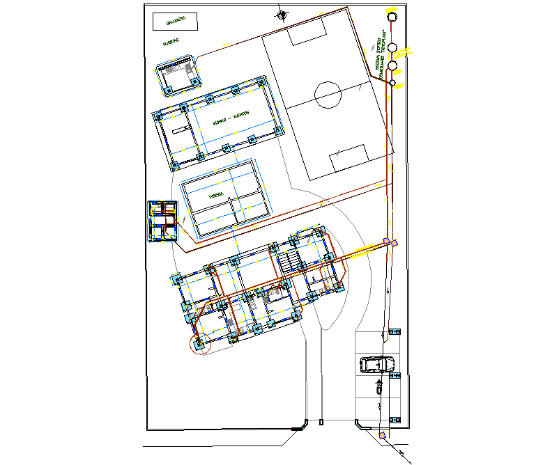
Foundation plan detail dwg file
Home
Categories
Details
Construction Details
Foundation plan detail dwg file
Uploaded by:
Dhara
View Profile
View Profile
Description
Foundation plan detail dwg file, diemsnion detail, anmign detail, car parking detail, north direction detail, etc.
File Type:
DWG
File Size:
9.9 MB
Category::
Details
Sub Category::
Construction Details
type:
Gold
Uploaded by:
Dhara
View Profile
Download
Add to libary
find Latest
Related
Files