LOGIN
HOME
CATEGORIES
UPLOAD FILE
PRICING
HOUSE PLAN
ABOUT US
CONTACT US
Lock plan and section detail autocad file
Home
Categories
Details
Construction Details
Lock plan and section detail autocad file
Uploaded by:
Dhara
View Profile
View Profile
Description
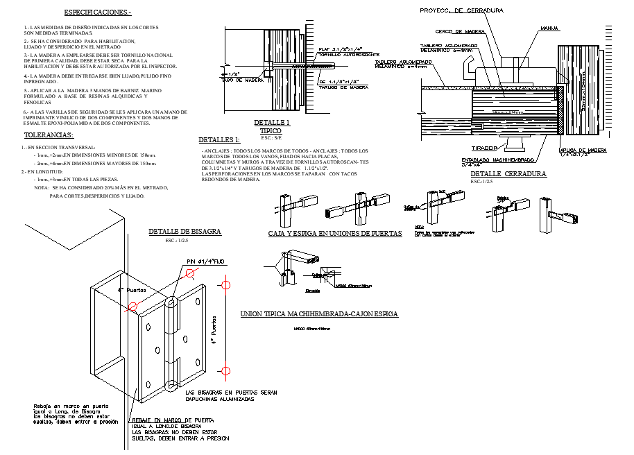
Lock plan and section detail autocad file, specification detail, isometric view detail, scale 1:2.5 detail, dimension detail, naming detail, etc.
File Type:
DWG
File Size:
898 KB
Category::
Details
Sub Category::
Construction Details
type:
Gold
Uploaded by:
Dhara
View Profile
Download
Add to libary
find Latest
Related
Files