LOGIN
HOME
CATEGORIES
UPLOAD FILE
PRICING
HOUSE PLAN
ABOUT US
CONTACT US
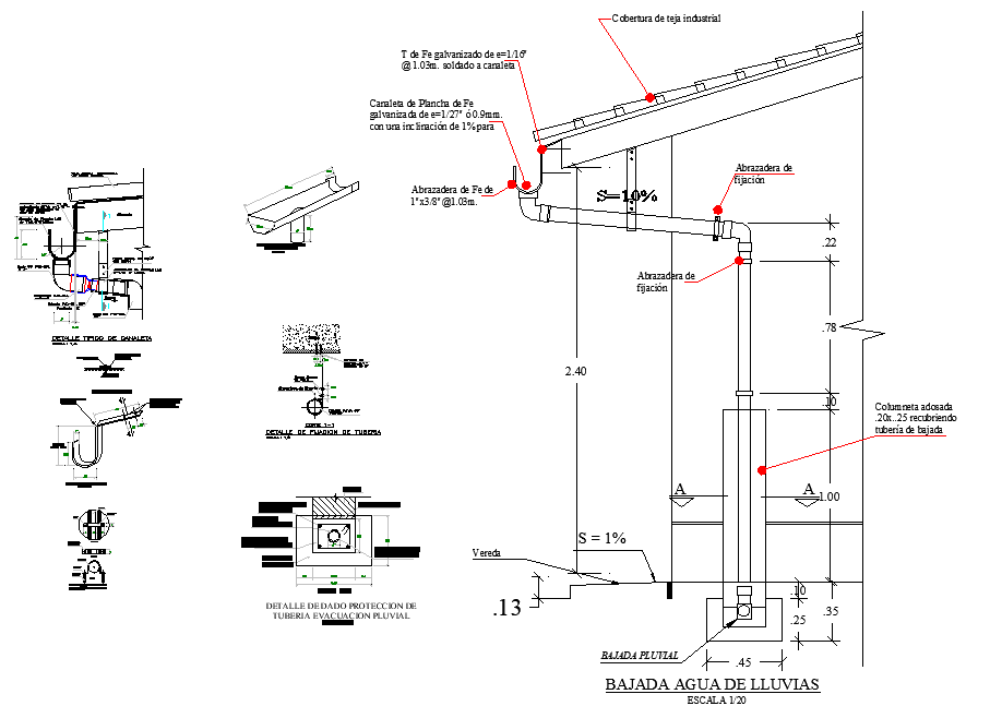
Rainwater drop section and elevation detail dwg file
Home
Categories
Details
Construction Details
Rainwater drop section and elevation detail dwg file
Uploaded by:
Dhara
View Profile
View Profile
Description
Rainwater drop section and elevation detail dwg file, dimension detail, naming detail, section lien detail, pipe detail, etc.
File Type:
DWG
File Size:
898 KB
Category::
Details
Sub Category::
Construction Details
type:
Gold
Uploaded by:
Dhara
View Profile
Download
Add to libary
find Latest
Related
Files