Living place plan detail dwg file
Description
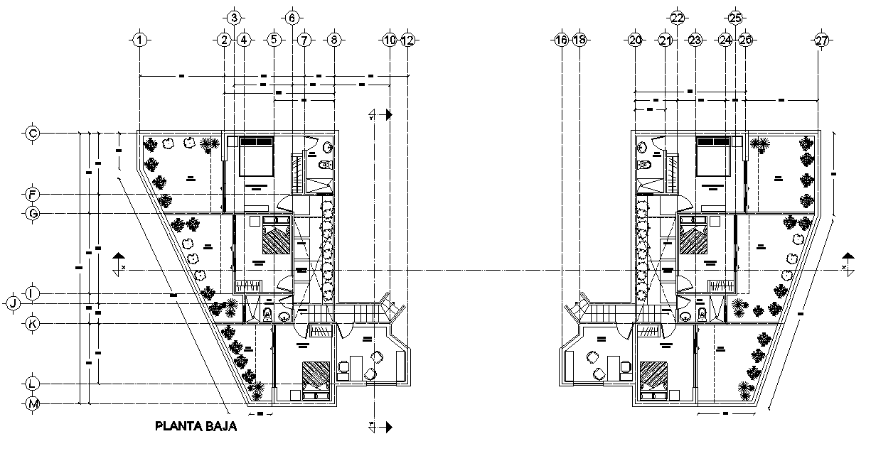
Living place plan detail dwg file, section line detail, centre line detail dimension detail, naming detail, landscaping detail in tree and plant detail, furniture detail in table, chair, cub board, drover, bed, door and window detail, stair detail, etc.
Uploaded by:
