Home plan detail autocad file
Description
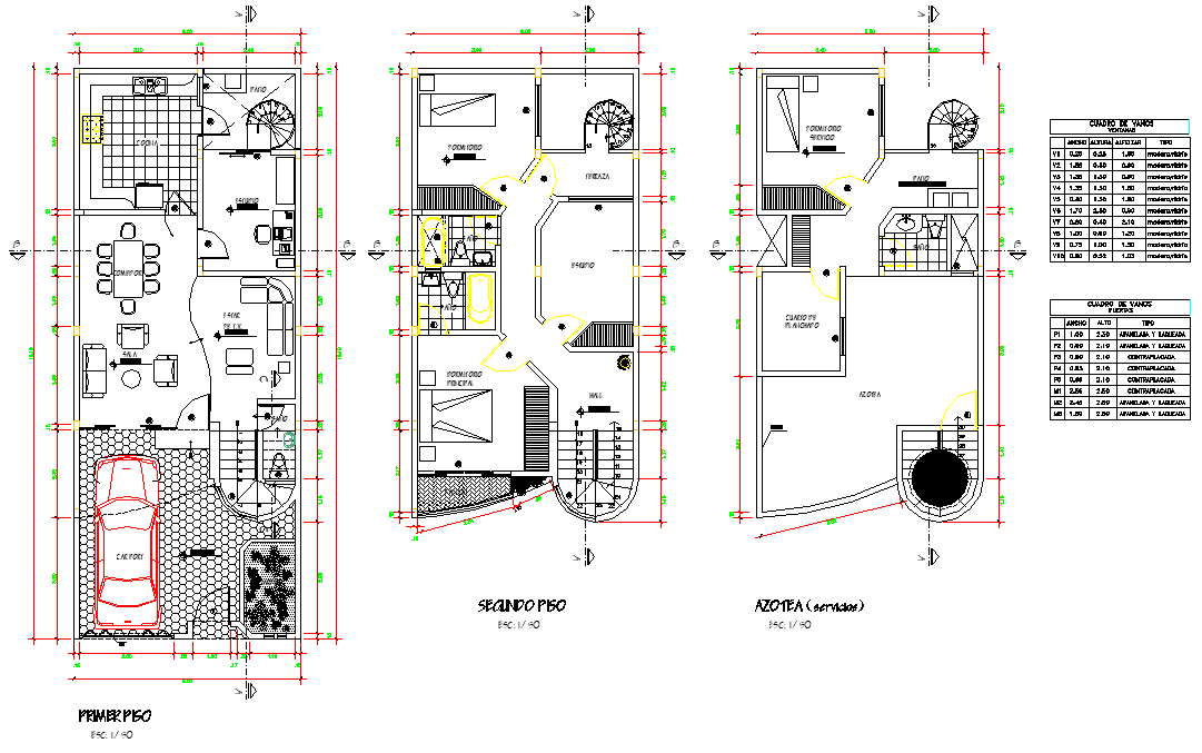
Home plan detail autocad file, dimension detail, naming detail, section line detail, stair detail, table specification detail, car parking detail, landscaping detail in tree and plant detail, furniture detail in table, chair, sofa, bed, door and window detail, toilet detail, etc.
Uploaded by:

