Stair case detail design drawing of residential building apartment design drawing
Description
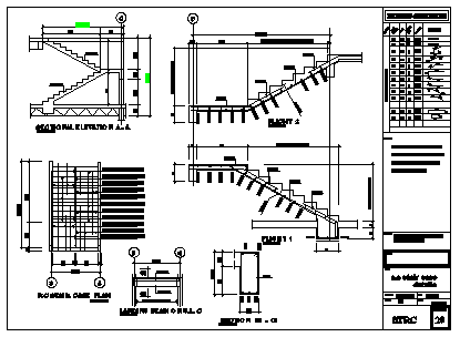
Here the Stair case detail design drawing of residential building apartment design drawing with landing beam on ground level section drawing, reinforcement stair case plan, flight section detail design drawing, sectional elevation design drawing with all detailing design drawing in this auto cad file.
File Type:
DWG
File Size:
2.7 MB
Category::
Mechanical and Machinery
Sub Category::
Elevator Details
type:
Gold
Uploaded by:
zalak
prajapati

