Architect house plan autocad file

Architect house plan autocad file
Profile

Uploaded by:

Dhara

Description
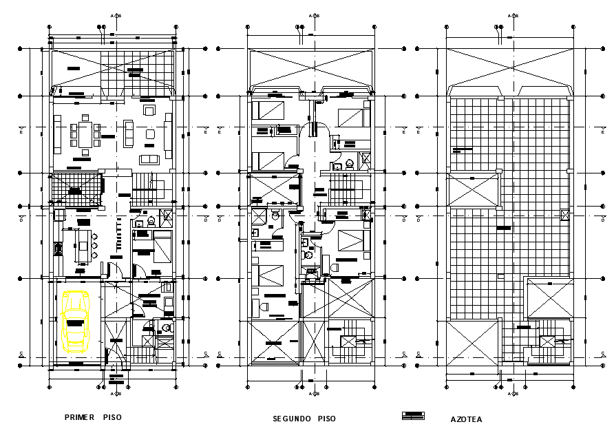
Architect house plan autocad file, ground floor to roof plan detail, section line detail, dimension detail, naming detail, car parking detail, cut out detail, toilet detail, etc.
Profile

Uploaded by:

Dhara

find Latest

Related Files

WhatsApp Chat