LOGIN
HOME
CATEGORIES
UPLOAD FILE
PRICING
HOUSE PLAN
ABOUT US
CONTACT US
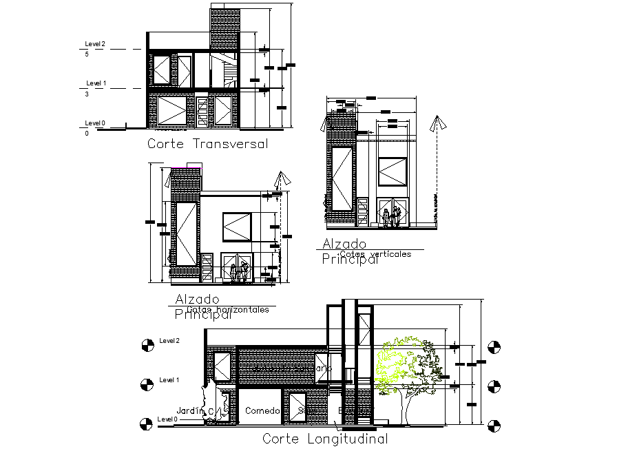
Section and elevation house plan detail
Home
Categories
Architecture
House Plan
Section and elevation house plan detail
Uploaded by:
Dhara
View Profile
View Profile
Description
Section and elevation house plan detail, front elevation detail, side elevation detail, section A-A’ detail, section B-B’ detail, dimension detail, naming detail, etc.
File Type:
DWG
File Size:
505 KB
Category::
Architecture
Sub Category::
House Plan
type:
Gold
Uploaded by:
Dhara
View Profile
Download
Add to libary
find Latest
Related
Files