Isometric view of shopping center second floor plan dwg file
Description
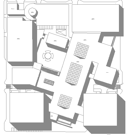
Isometric view of shopping center second floor plan dwg file.
Isometric view of shopping center second floor plan that includes a detailed view of car parking view, floor view, indoor staircases, toilets and bathrooms, offices, shops and showrooms, food stores, restaurants, party and conference hall, fun zone, elevators and much more of shopping center project.
Uploaded by:

