Plan and elevation house layout file
Description
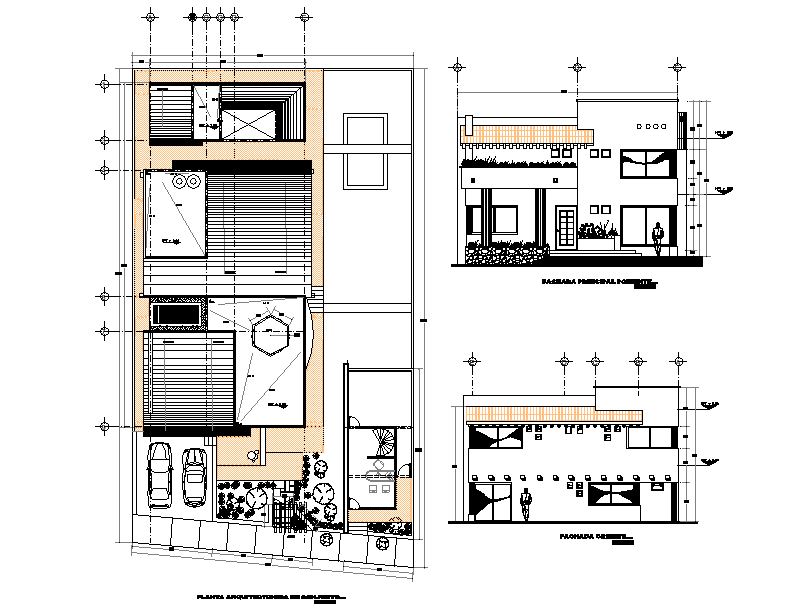
Plan and elevation house layout file, front elevation detail, side elevation detail, centre lien detail, dimension detail, furniture detail in table, chair, door, window and bed detail, landscaping detail in tree and plant detail, car parking detail, etc.
Uploaded by:

