LOGIN
HOME
CATEGORIES
UPLOAD FILE
PRICING
HOUSE PLAN
ABOUT US
CONTACT US
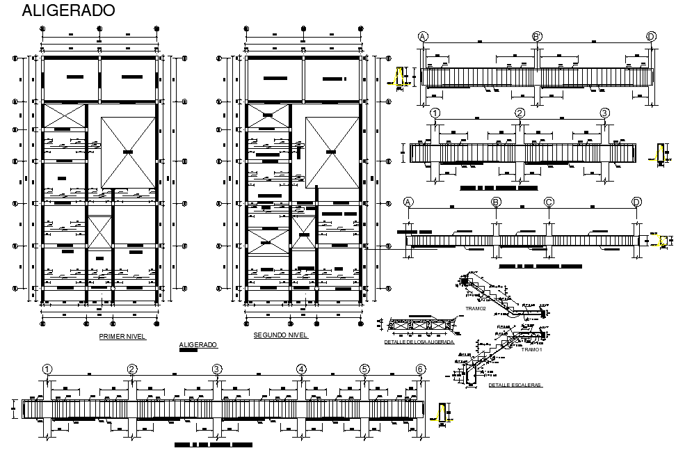
Detail of beam plan and section dwg file
Home
Categories
Details
Construction Details
Detail of beam plan and section dwg file
Uploaded by:
Dhara
View Profile
View Profile
Description
Detail of beam plan and section dwg file, stair section plan detail, centre lien detail, dimension detail, naming detail, bolt nut detail, reinforcement detail, etc.
File Type:
DWG
File Size:
1 MB
Category::
Details
Sub Category::
Construction Details
type:
Gold
Uploaded by:
Dhara
View Profile
Download
Add to libary
find Latest
Related
Files