LOGIN
HOME
CATEGORIES
UPLOAD FILE
PRICING
HOUSE PLAN
ABOUT US
CONTACT US
Foundation plan detail dwg file
Home
Categories
Details
Construction Details
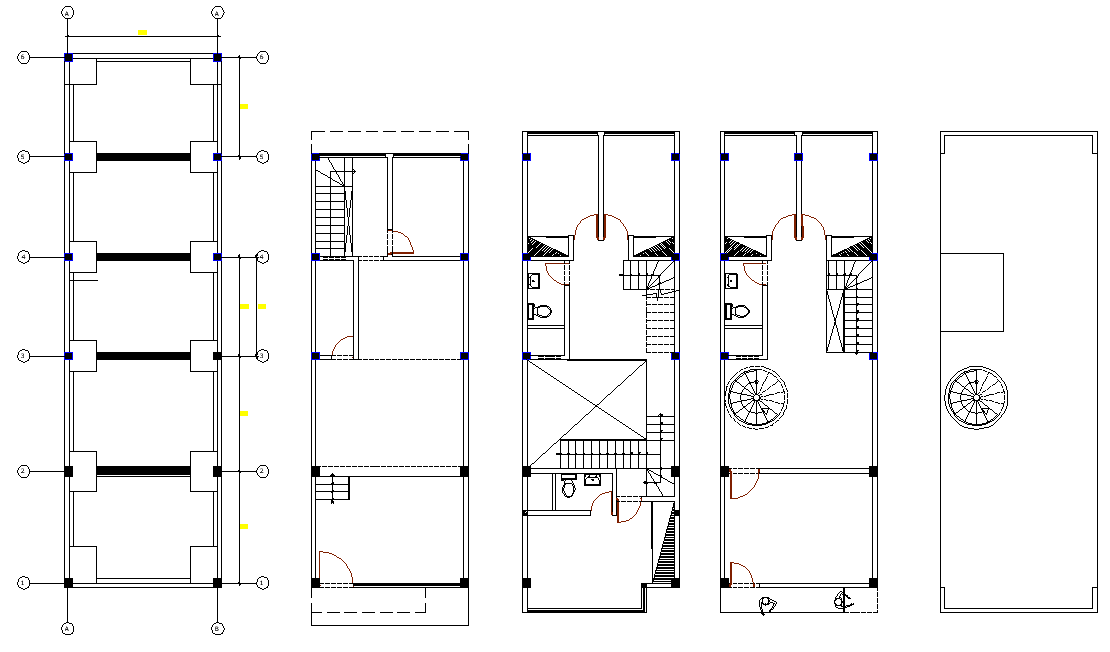
Foundation plan detail dwg file
Uploaded by:
Dhara
View Profile
View Profile
Description
Foundation plan detail dwg file, spiral stair detail, toilet detail, furniture detail in door and window detail, centre lien plan detail, dimension detail, hatching detail, etc.
File Type:
DWG
File Size:
6.6 MB
Category::
Details
Sub Category::
Construction Details
type:
Gold
Uploaded by:
Dhara
View Profile
Download
Add to libary
find Latest
Related
Files