Beach house electric facilities plan autocad file
Description
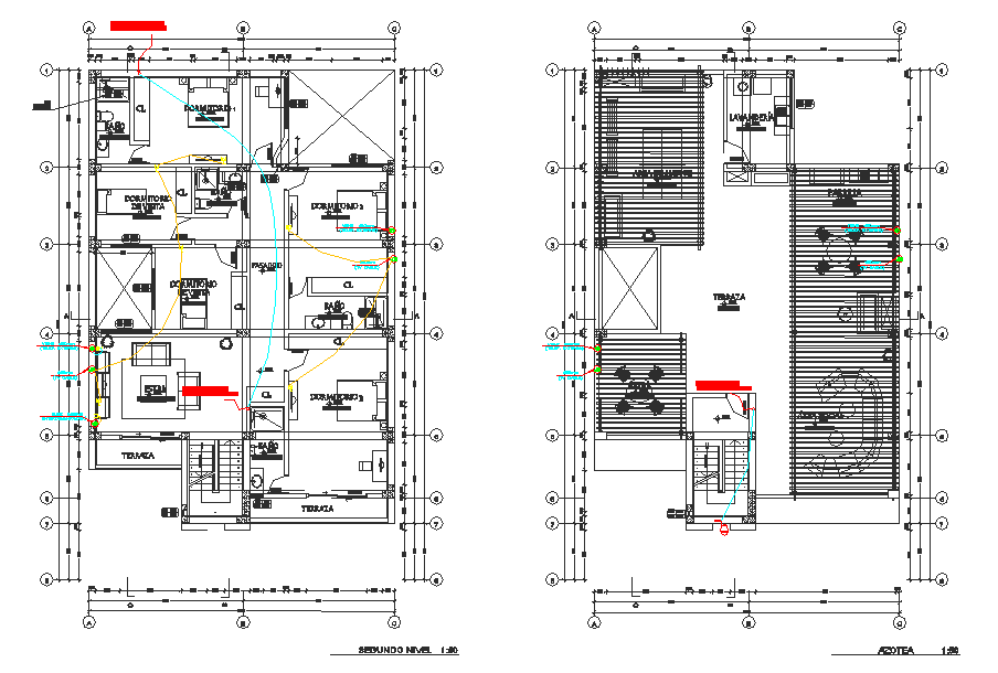
Beach house electric facilities plan autocad file, centre lien plan detail, dimension detail, naming detail, furniture detail in cub board, table, chair, door, window and bed detail, etc.
Uploaded by:

