Typical Detailed Geyser Installation design drawing
Description
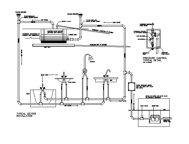
Here the Typical Detailed Geyser Installation design drawing with all detailing mentioned and section detail and pressure control typical detail design drawing, detail of meter and gate valve to municipal to standard detail design drawing in this auto cad file.
File Type:
DWG
File Size:
57 KB
Category::
Mechanical and Machinery
Sub Category::
Other Cad Blocks
type:
Gold
Uploaded by:
zalak
prajapati

