LOGIN
HOME
CATEGORIES
UPLOAD FILE
PRICING
HOUSE PLAN
ABOUT US
CONTACT US
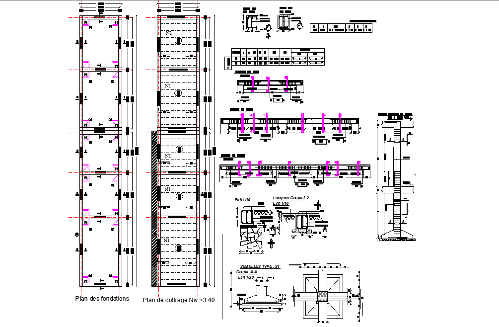
Foundation and beam plan detail dwg file
Home
Categories
Details
Construction Details
Foundation and beam plan detail dwg file
Uploaded by:
Dhara
View Profile
View Profile
Description
Foundation and beam plan detail dwg file, dimension detail, naming detail, reinforcement detail, bolt nut detail, section line detail, etc.
File Type:
DWG
File Size:
5.2 MB
Category::
Details
Sub Category::
Construction Details
type:
Gold
Uploaded by:
Dhara
View Profile
Download
Add to libary
find Latest
Related
Files