Architecture layout plan details of House floor

Architecture layout plan details of House floor
Profile

Uploaded by:

Poonam

Description
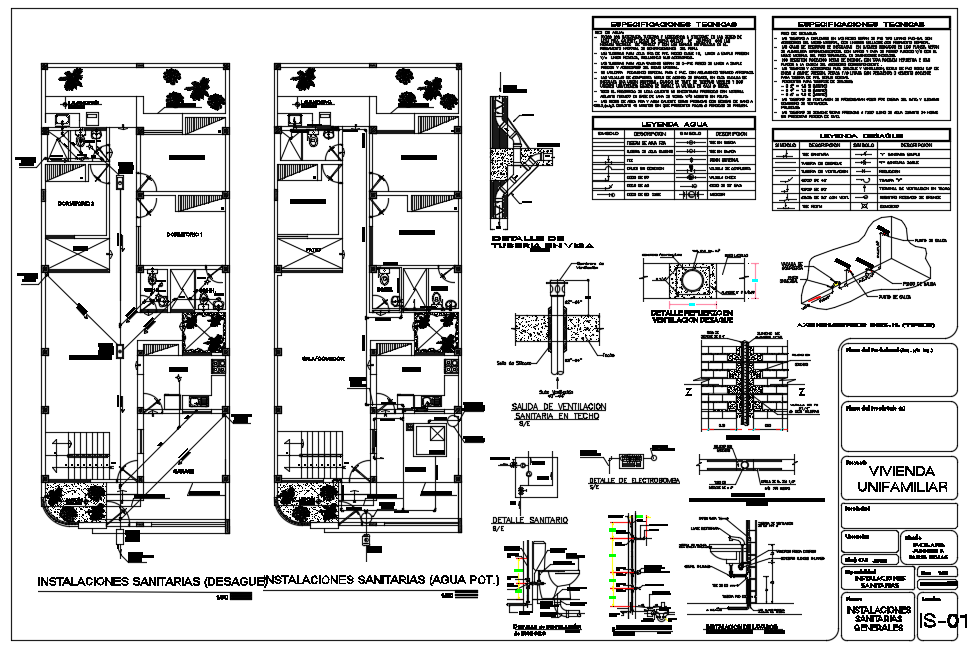
Architecture layout plan details of House floor dwg file. Includes wall construction, column and beam details, naming detail, section and much more of house floor design.
Profile

Uploaded by:

Poonam

find Latest

Related Files