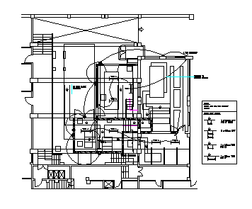
Cable tray layout detail design drawing
Description
Here the Cable tray layout detail design drawing with lights and tray on stand by power, cable tray legend, connect to existing fitting design drawing in this auto cad file.
Uploaded by:
zalak
prajapati

