LOGIN
HOME
CATEGORIES
UPLOAD FILE
PRICING
HOUSE PLAN
ABOUT US
CONTACT US
Detail of beam plan layout file
Home
Categories
Structure
Beam And Lintel
Detail of beam plan layout file
Uploaded by:
Dhara
View Profile
View Profile
Description
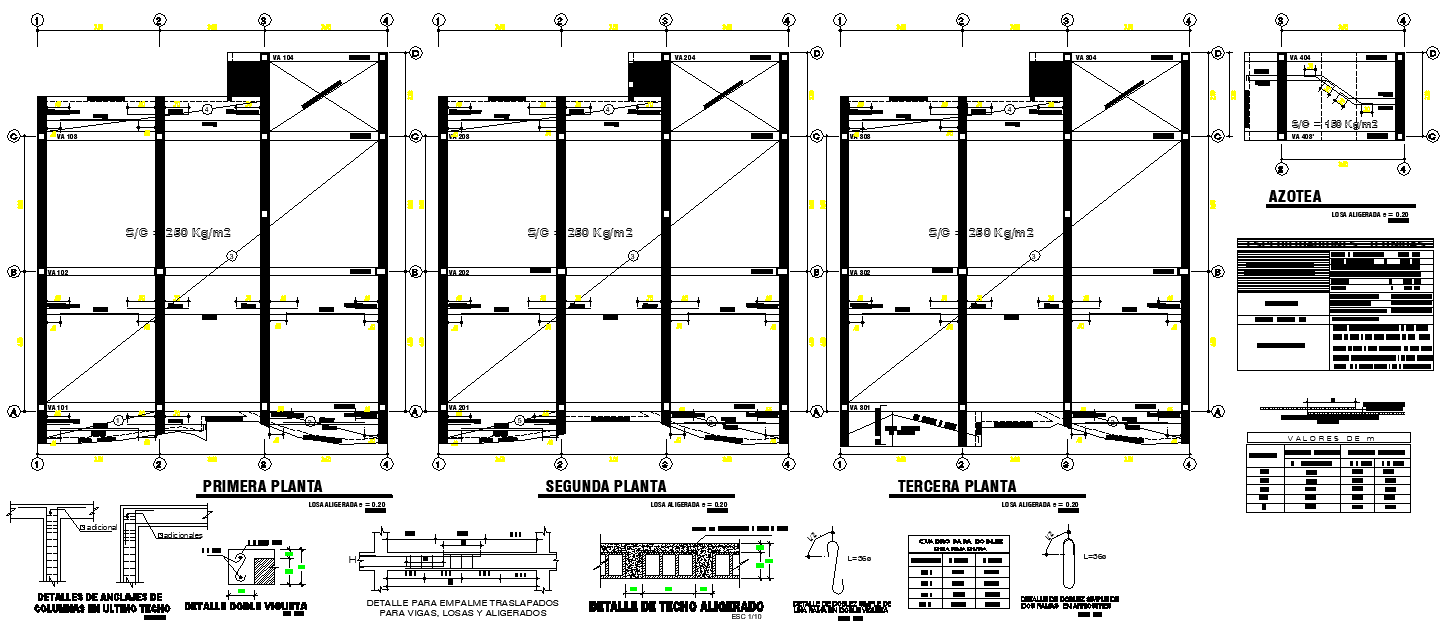
Detail of beam plan layout file, dimension detail, naming detail, centre line plan detail, table specification detail, ground floor to roof plan detail, etc.
File Type:
DWG
File Size:
282 KB
Category::
Structure
Sub Category::
Beam And Lintel
type:
Gold
Uploaded by:
Dhara
View Profile
Download
Add to libary
find Latest
Related
Files