LOGIN
HOME
CATEGORIES
UPLOAD FILE
PRICING
HOUSE PLAN
ABOUT US
CONTACT US
Wall of contention plan detail dwg.
Home
Categories
Details
Construction Details
Wall of contention plan detail dwg.
Uploaded by:
Liam
White
View Profile
View Profile
Description
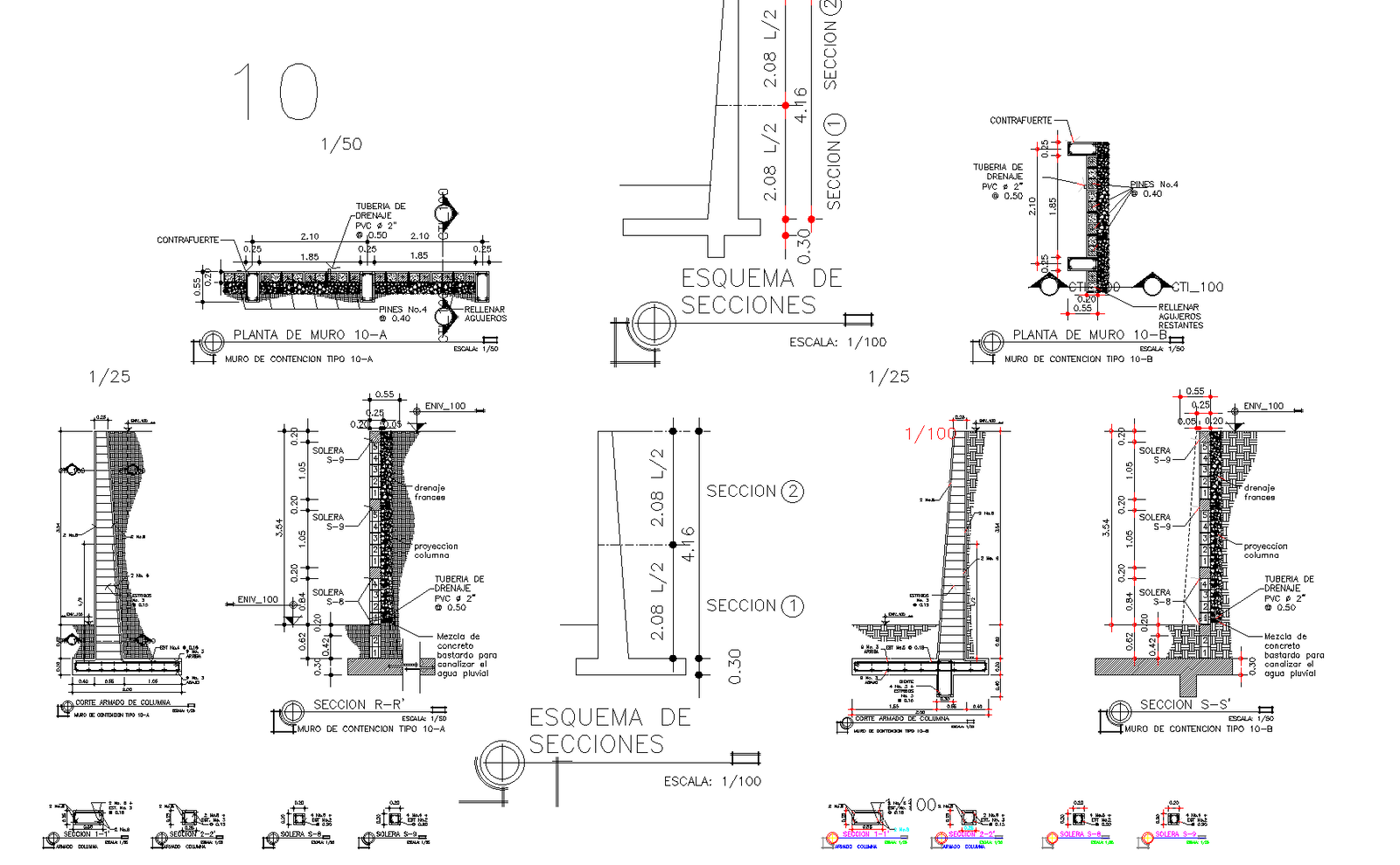
Wall of contention plan. Detailed plan of sectional elevations. Detailing includes French drainage detail, column projection detail, dimension detail, etc.,
File Type:
3d max
File Size:
494 KB
Category::
Details
Sub Category::
Construction Details
type:
Gold
Uploaded by:
Liam
White
View Profile
Download
Add to libary
find Latest
Related
Files