LOGIN
HOME
CATEGORIES
UPLOAD FILE
PRICING
HOUSE PLAN
ABOUT US
CONTACT US
Heritage house plan autocad file
Home
Categories
Architecture
House Plan
Heritage house plan autocad file
Uploaded by:
Dhara
View Profile
View Profile
Description
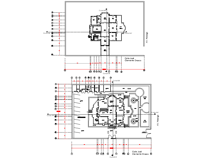
Heritage house plan autocad file, centre line plan detail, furniture detail in door and window detail dimension detail, naming detail, section line detail, etc.
File Type:
DWG
File Size:
765 KB
Category::
Architecture
Sub Category::
House Plan
type:
Gold
Uploaded by:
Dhara
View Profile
Download
Add to libary
find Latest
Related
Files