Second floor layout plan details of shopping mall dwg file
Description
Second floor layout plan details of shopping mall dwg file
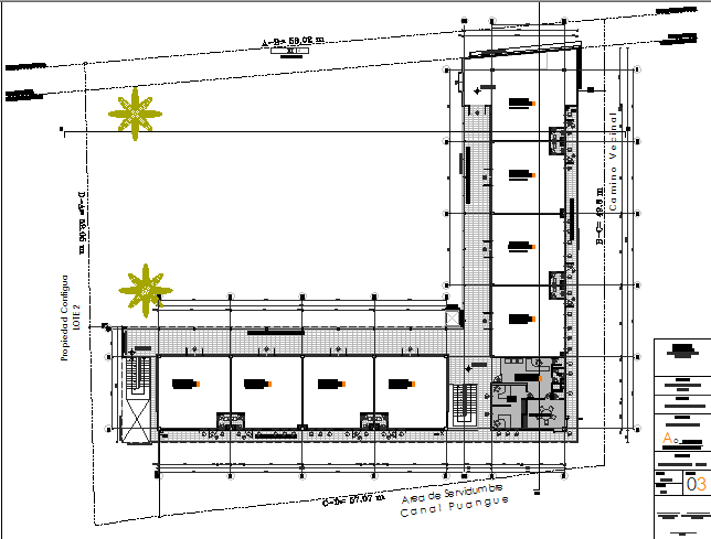
Second floor layout plan details of shopping center that includes a detailed view of staircase, elevator, tree view, shops and showrooms, seating area, passage, general hall, offices and much more of shopping mall project.
Uploaded by:

