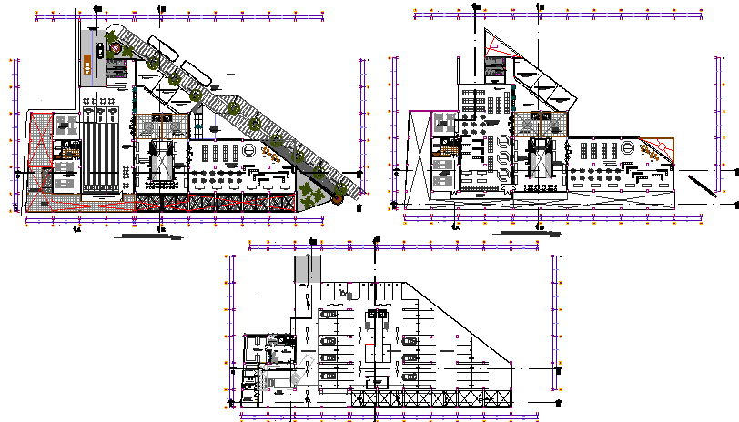
Basement, first and second floor layout plan details of shopping center dwg file
Description
Basement, first and second floor layout plan details of shopping center dwg file.
Basement, first and second floor layout plan details of shopping center that includes a detailed view of main entry gate, exit gate, basement car parking view, shops, showrooms, elevators, lifts, food stores, corporate offices, game zone, theater, indoor staircases, waiting area, passage, general hall, party hall, sanitary facilities, cafe shops, food stores, restaurant, cleaning department and much more of shopping center project.
Uploaded by:

