Elevation Project executive home autocad file
Description
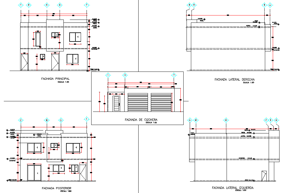
Elevation Project executive home autocad file, front elevation detail, right elevation detail, left elevation detail, back elevation detail, centre line plan detail, dimension detail, naming detail, scale 1:50 detail, furniture detail in door and window detail, etc.
Uploaded by:

