Strip mall center elevation, section and floor plan details dwg file
Description
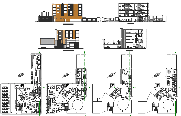
Strip mall center elevation, section and floor plan details dwg file.
Strip mall center elevation, section and floor plan details that includes a detailed view of front and back elevations, front and back sections, flooring view, doors and windows view, staircase view, tree view, car parking view, wall design, shops and showrooms, corporate offices, theater, food stores and much more of shopping mall project.
Uploaded by:

