Ground and first floor layout plan details of shopping center dwg file
Description
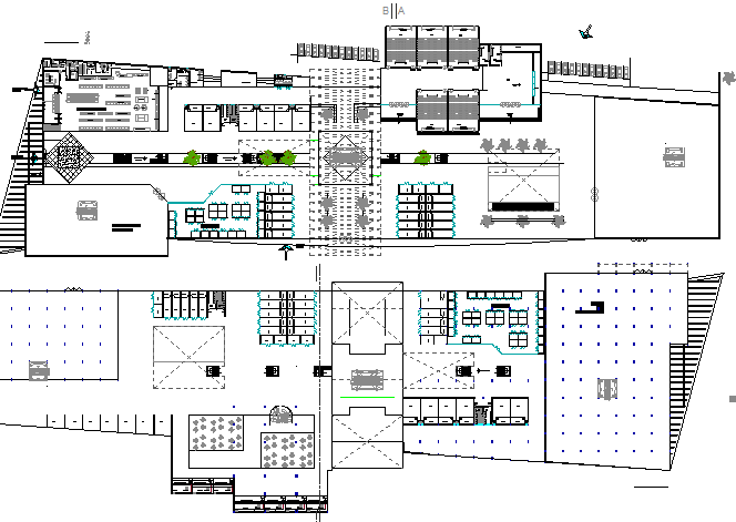
Ground and first floor layout plan details of shopping center dwg file.
Ground and first floor layout plan details of shopping center that includes a detailed view of main entry and exit gate, car parking view, landscaping view, staircase and elevators view, mini garden, general hall, passage, seating area, shops and showrooms, theater, game zone, departmental stores, food stores, party hall, cafeteria, offices and much more of shopping center project.
Uploaded by:

