LOGIN
HOME
CATEGORIES
UPLOAD FILE
PRICING
HOUSE PLAN
ABOUT US
CONTACT US
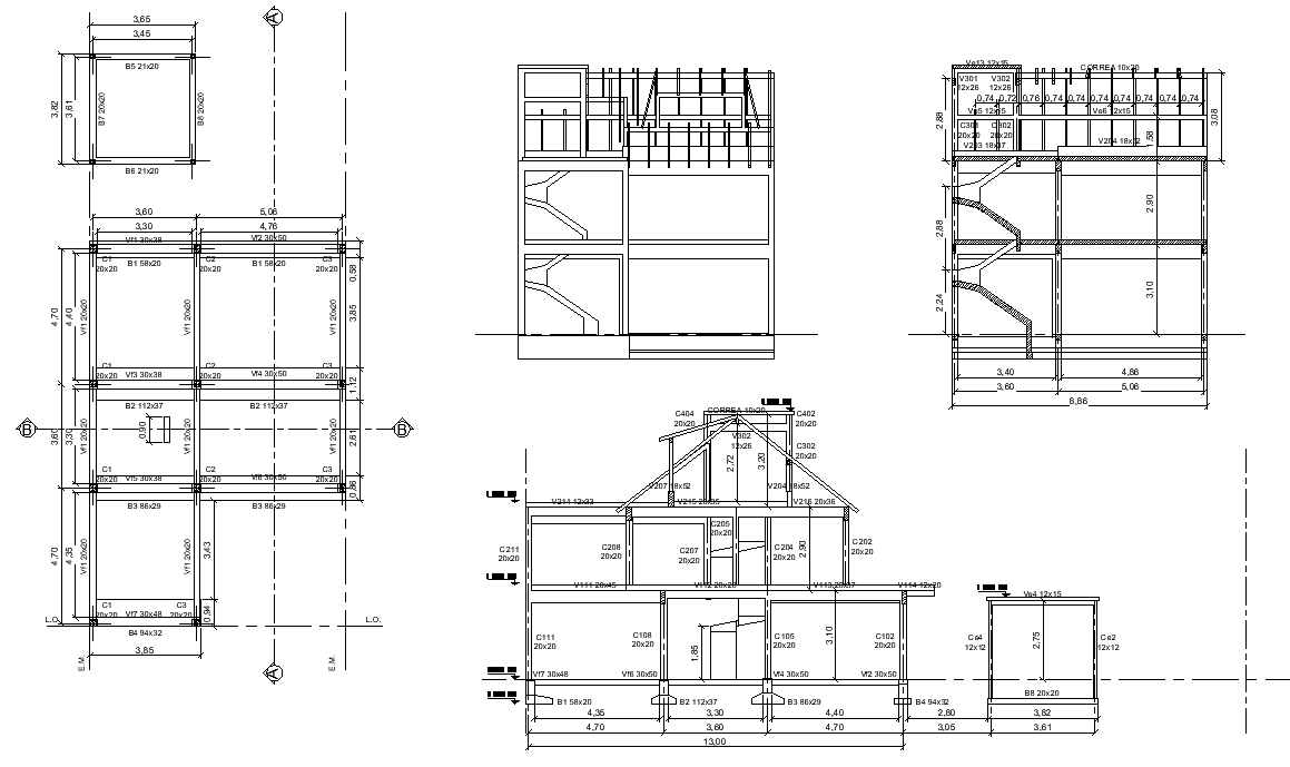
Section home plan dwg file
Home
Categories
Architecture
House Plan
Section home plan dwg file
Uploaded by:
Dhara
View Profile
View Profile
Description
Section home plan dwg file, dimension detail, naming detail, foundation detail, leveling detail, roof plan detail, centre line plan detail, etc.
File Type:
DWG
File Size:
161 KB
Category::
Architecture
Sub Category::
House Plan
type:
Gold
Uploaded by:
Dhara
View Profile
Download
Add to libary
find Latest
Related
Files