Single family house working plan autocad file
Description
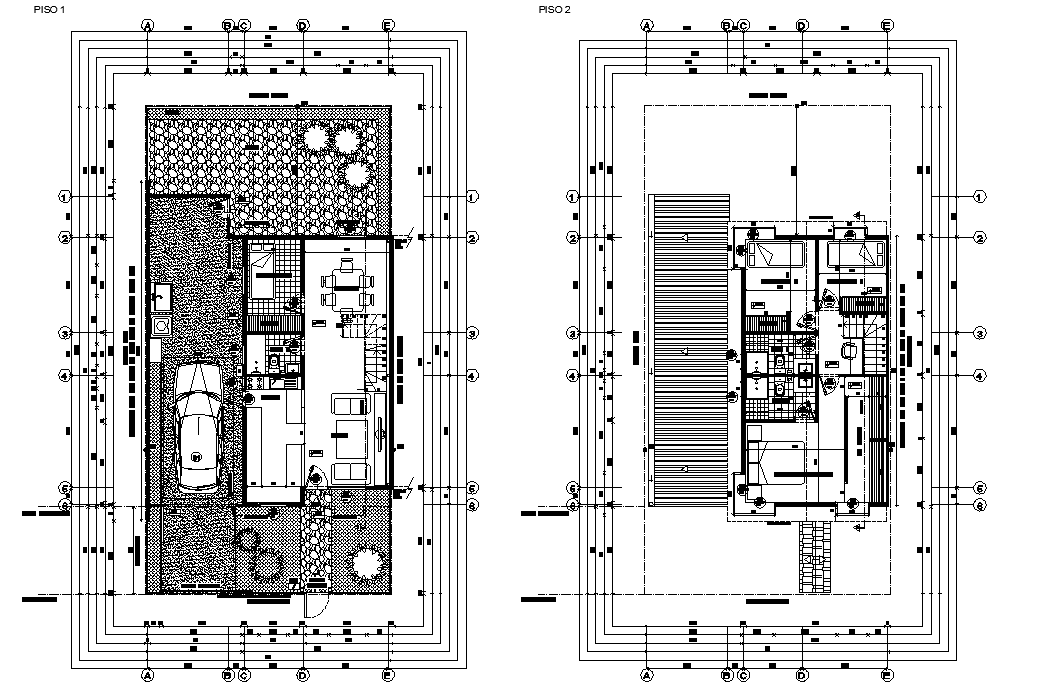
Single family house working plan autocad file, centre line plan detail, dimension detail, naming detail, car parking detail, landscaping detail in tree and plant detail, stair detail, furniture detail in door, window, chair, table, bed, sofa and cub board detail, stone detail, etc.
Uploaded by:
