Working villa plan detail dwg file
Description
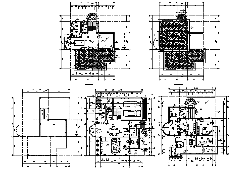
Working villa plan detail dwg file, ground floor to terrace floor plan detail, centre lien plan detail, dimension detail, naming detail, landscaping detail in tree and plant detail, car parking detail, furniture detail in door, window, chair, table, bed, sofa and cub board detail, hatching detail, etc.
Uploaded by:

