LOGIN
HOME
CATEGORIES
UPLOAD FILE
PRICING
HOUSE PLAN
ABOUT US
CONTACT US
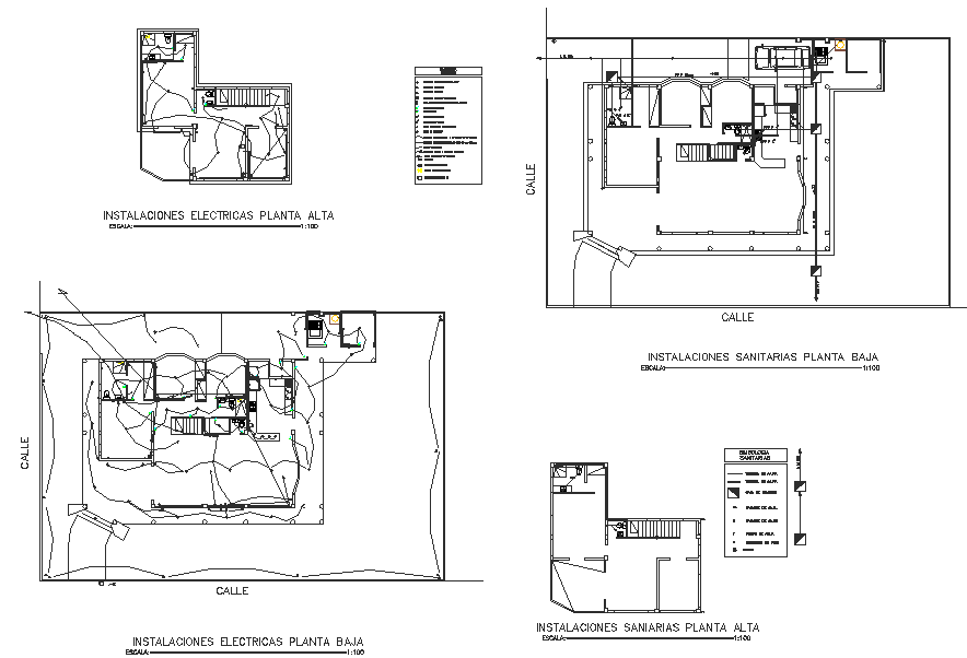
Electrical and sanitary home plan dwg file
Home
Categories
Details
Construction Details
Electrical and sanitary home plan dwg file
Uploaded by:
Dhara
View Profile
View Profile
Description
Electrical and sanitary home plan dwg file, specification detail, table detail, stair detail, furniture detail in door and window detail, scale 1:100 detail, etc.
File Type:
DWG
File Size:
3 MB
Category::
Details
Sub Category::
Construction Details
type:
Gold
Uploaded by:
Dhara
View Profile
Download
Add to libary
find Latest
Related
Files